Loué
  • Image 1
  • Image 2
  • Image 3
  • Image 4
  • Image 5
Retour au listing Réf. 2647S_Kirchberg_Appart16
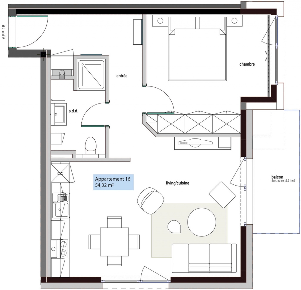
Appartement meublé - 54.32m² - 1 chambre(s)
Loué
Surface 54.32 m²
1
Salle de douche 1

Description du bien

Disponibilité :
01/01/2023
Luxembourg-Kirchberg
LOCATION COURT TERME, charges, wifi, TV et services compris
Très bel appartement meublé et équipé 1 chambre avec services en location courte durée à Luxembourg Kirchberg. SHORT TERM RENTAL, APARTMENT 1 BEDROOM With SERVICES.


Cet appartement de haut standing se trouve proche des institutions européennes, de l'école européenne et de la Chambre de commerce dans une rue calme et en retrait.

L'appartement d'une superficie de 54.32 m2 dispose d'un balcon meublé de 6.31m2.

La pièce principale comporte une cuisine américaine entièrement équipée. Du mobilier très design meuble le salon avec la fenêtre triple vitrage.

La télévision à écran plat et de bonne taille munie de chaînes satellitaires permettra aux polyglottes de regarder une myriade de chaînes télévisées.

Toutes les charges sont comprises : eau, électricité, chauffage, wifi, assurance. Sur base d'une utilisation en bon père de famille.

Services inclus : nettoyage 1 x par semaine, changement linge de lit et de salle de bain 1 x par semaine, mise à disposition d'une machine à laver et d'un sèche-linge privatifs dans buanderie commune

La salle de bain munie d'une douche à l'italienne, d'un lavabo, d'un WC et d'un radiateur sèche-serviettes est très fonctionnelle.

L'appartement dispose d'une chambre séparée. Tout un pan de mur d'armoires vous permettra de ranger votre garde-robe complète. Son lit de bonne taille et de très bonne qualité vous permettra de passer de bonnes nuits.

La qualité de prestation tout comme la qualité de construction est exceptionnelle et apportera bien être aux occupants. Les meubles aux lignes épurées mis à disposition donnent un style très design à l'appartement.

La bonne isolation de l'immeuble et de l'appartement apportera tranquillité à tous les occupants.

L'appartement est entièrement meublé. La vaisselle, les couverts, les ustensiles de cuisine, une machine à café 'Nespresso' sont mis à votre disposition.

Le logement possède, à chaque fenêtre, un store électrique.

On peut parler de logement d'exception avec une qualité de finition luxueuse de grande qualité.

Chaque locataire dispose d'un badge donnant accès au logement, à la buanderie, au local poubelles, à la cave privative spacieuse (+/-6m2) et à la boîte aux lettres.

Informations pratiques :
Place de parking intérieur : + 150 Euros/mois
Caution : 1 mois de loyer
Commission agence : 1 mois de loyer + 17% de TVA à charges du locataire.

En voiture : Plusieurs accès par la côte d'Eich, le Kirchberg vous permettent d'avoir différents itinéraires vers l'immeuble. L'autoroute se trouve à quatre kilomètres et relie l'Allemagne, la France et la Belgique directement.

L'aéroport se trouve à 7 kilomètres et peut être relié à l'immeuble, rapidement, aussi bien par bus, voitures ou taxi.

En Bus :
A 300 mètres : arrêt de bus Jean Monnet.
Lignes 6, 16, 18, 21, 25, 211 et C01

Les bus, très fréquents, vous amèneront rapidement n'importe où en ville, gare, aéroport et Kirchberg.

A pied : Proche de la Chambre de Commerce, de la piscine Olympique du Kirchberg, des institutions européennes, du boulevard J.F Kennedy et de l'école européenne.
Tous les commerces, loisirs, détentes, secteur médical, banques sont proches de l'immeuble comme:
Centre commercial Auchan, Pharmacie, Restaurants, Hôpital du Kirchberg, Maternité, Complexe cinématographique Utopolis, Hall de foires, Musée, Philarmonie, centre sportif 'La Coque' et salle de fitness, etc...

Un parc longeant tout le Kirchberg de la piscine au supermarché et long de plusieurs kilomètres permettra aux sportifs de courir, marcher ou pratiquer du vélo en toute quiétude sans être dérangé par les véhicules.

Caractéristiques

Confort
Ascenseur
Antenne satellite
Volets électriques
Extérieur
Balcon
Surface balcon 6.31 m²
Informations
Référence 2647S_Kirchberg_Appart16
Nombre de chambres 1
court_terme
Surface 54.32 m²
Année de construction 2013
Intérieur
Buanderie
Meublé
Rénové
Pièces
Cuisine
Cuisine équipée
Cuisine indépendante
Séjour
Salle de douche 1
Cave
Hall
Sécurité
Porte blindée
Vidéophone
Alarme

Passeport énergétique

Classe de performance énergétique Classe de performance énergétique
Classe d'isolation thermique Classe d'isolation thermique

Localiser le bien

L'adresse exacte de ce bien n'est pas renseignée

Contactez-nous

Partager l'annonce